subliminal dream
modern asklepion/day dream laboratory
Dreams. What do they really represent?
To what extent can we delve into the
content of our dreams and discover
layers/informations/supressions that
are hidden and deeply entrenched in
our minds? Clear contrasts between
the outer world/the inner world and
life/death became discernible through
studying Freud. What is the undefined
state that exists between the realm
of two polar opposites? Through
architecture such question can be
tested theoretically but also
tangibly via the strength of physical
manifestations.
Research studies allowed the project to evolve into the question of how to physically translate something that can not be rationalized into words and explanations into tangible objects which through their architectonics and motion capabilities embody spatial capacities.
Freud´s patient room
Freud´s study room
Diagrammatic depth focus trainer
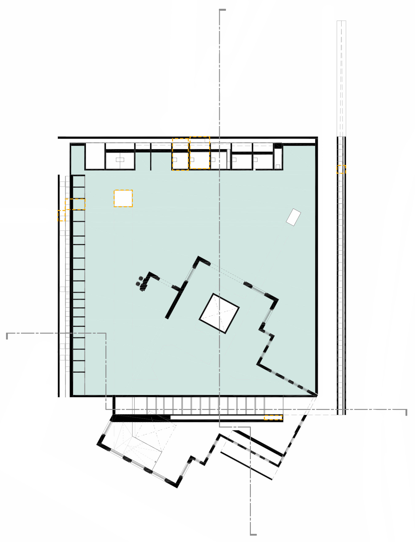
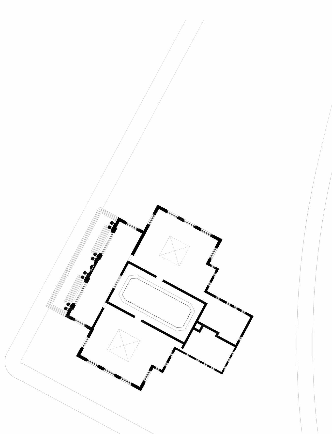
The project is located in east side Manhatten (New York) between 23rd and 25th street on 8th avenue.
Large parts of the existing construction and the addition are flooded with water. The material of the water links and connects both environments. The malleability of the water suggests the opportunity of exploration through which the visitors can freely move and stop at their own pace.
Large parts of the existing construction and the addition are flooded with water. The material of the water links and connects both environments. The malleability of the water suggests the opportunity of exploration through which the visitors can freely move and stop at their own pace.


concept sketch
existing structure
new ground floor
The illusion of stasis but the
paradoxical reality of constant
motion

section
The floor plates act as body
sustainers and perform vertical
motions that lead the visitor
from one experience to another.
No full enclosures exist, nor
are clear openings disclosed.
Each part of the bathhouse
responds / interacts and
reveals its intricacies when
it starts to be investigated by
the curiosity of the visitor.










sectional physical models of day dream retreat
